Chatsworth Road, E5 Chatsworth Road, E5

Chatsworth Road, E5

2 bedroom Property for sale

£675,000

  • 2 bedroom
  • 1 bathroom
  • 1 reception

Key Features

  • Sought After Location
  • Huge Potential
  • Immaculate Presentation
  • Impressive Living Space
  • Private Garden
  • Close To Amenities

Description

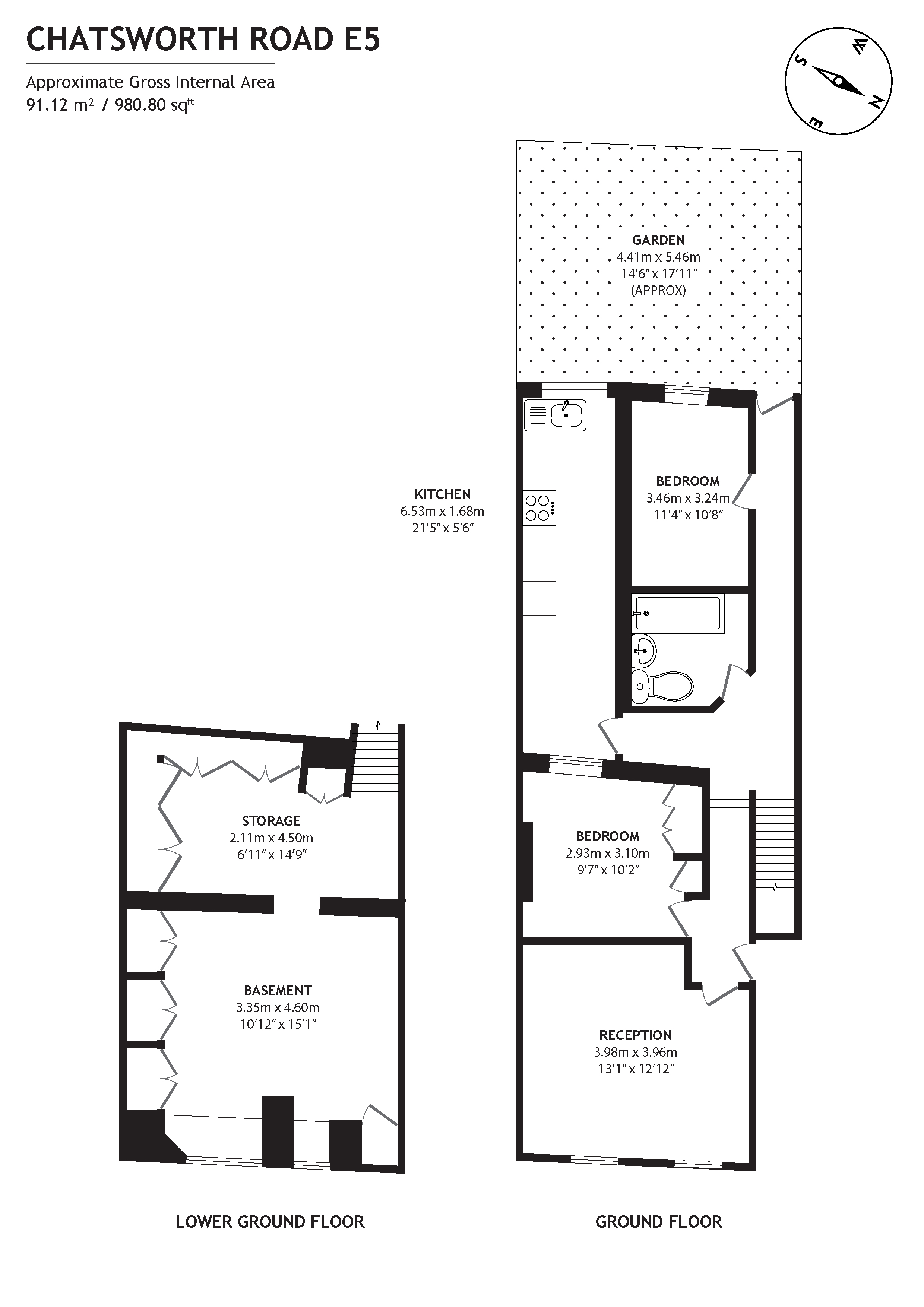
Situated on the ground floor of this impressive three storey Victorian residence is this immaculate two bedroom garden flat. Boasting excellent presentation, superb room proportions and a wealth of natural light. Accommodation comprising of a large reception room with wood flooring, separate eat in kitchen, principal bedroom with bespoke wardrobes, second bedroom, modern bathroom and private west facing section of garden. Further benefitting from a large basement area currently used as storage but with potential to be converted. Conveniently located moments from Millfields Park, ever-changing Chatsworth Road and a host of transport links giving swift City access.


Location


Floorplan

Floorplan

EPC

EPC for Chatsworth Road, E5

Book a viewing +44 123 478929
Share

Alex Smith

Sales Negotiator

London Estate Agent

Jupiter House, Solar System Lane, JP12 3AB