Colvestone Crescent, E8 Colvestone Crescent, E8

Colvestone Crescent, E8

2 bedroom Property for sale

£599,995

  • 2 bedroom
  • 1 bathroom
  • 1 reception

Key Features

  • Chain Free
  • Sought After Location
  • Private Section Of Garden
  • Period Charm
  • Spacious Living Room
  • Contemporary Fittings

Description

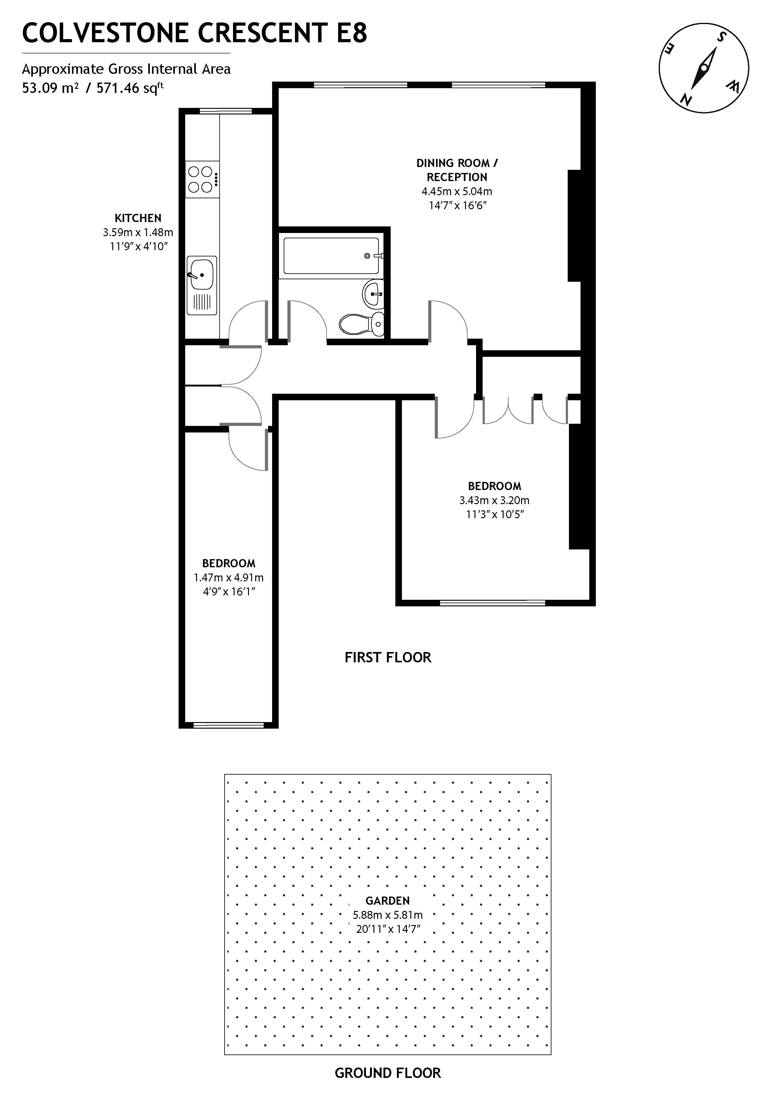
Occupying the first floor of this enchanting four-storey Victorian house is this exquisite two bedroom flat. Retaining some glorious features with impressive ceiling heights, sash windows and sumptuous wooden flooring. Composed of an inviting reception hall, spacious living room, galley kitchen, two bedrooms and a stylish bathroom. Further benefitting from a private section of garden and a Share of Freehold. Enviably located for Ridley Road, Broadway Market, London Fields and Stoke Newington High Street. Transport links include Dalston Junction and Dalston-Kingsland Overground Stations. Share of Freehold with Lease currently 96 years remaining,


Location


Floorplan

Floorplan

EPC

EPC for Colvestone Crescent, E8

Video Tour


Book a viewing +44 123 478929
Share

Alex Smith

Sales Negotiator

London Estate Agent

Jupiter House, Solar System Lane, JP12 3AB

Similar Properties

Queensbridge Road, E8
For Sale

Queensbridge Road, E8

3 Bed Property For Sale
Guide price £775,000
Ward Hall Court, E8
Under Offer

Ward Hall Court, E8

2 Bed Ground floor flat Under Offer
Guide price £870,000
Vanguard House, E8
For Sale

Vanguard House, E8

2 Bed Property For Sale
Guide price £550,000